Casa semindipendente in vendita

Cosenza, Frazione Magli - Borgo Partenope
€ 65.000
5 locali 5 locali
330 Mq 330 Mq
1 bagno 1 bagno

Casa semindipendente in vendita

Cosenza, Frazione Magli - Borgo Partenope

Descrizione annuncio

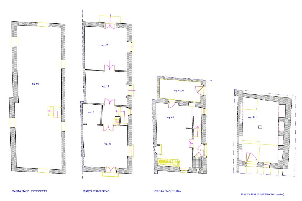
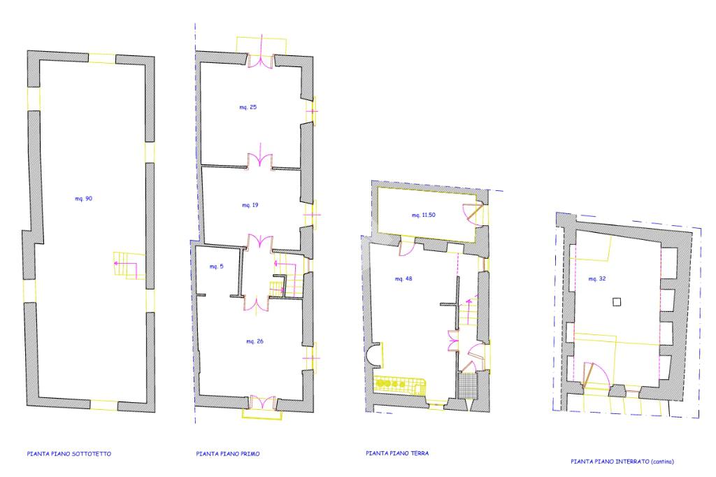
Magli, Casali del Manco, proponiamo in vendita una soluzione indipendente su più piani di circa 336 mq circa, con annesso terreno (di complessivi 5400 mq circa), a destinazione agricola, posto a circa 100 m di distanza dal fabbricato.

La soluzione è disposta su più livelli e più precisamente:

Al piano terra troviamo una prima zona abitabile di circa 68 mq lordi dove trova collocazione un ambiente cucina, una dispensa, un bagno e un ulteriore ambiente di servizio, mentre al primo piano che si raggiunge attraverso una scala interna troviamo la zona notte di circa 105 mq lordi dove sono allocate tre camere da letto;

Al secondo livello vi è un sottotetto non abitabile comunque abbastanza sfruttabile di circa 100 mq.

Il fabbricato è provvisto anche di un locale cantina, di circa 53 mq, collocato nel piano interrato della costruzione.

La struttura portante in muratura di pietrame, risalente al 1860, necessita di ristrutturazione sia in alcuni elementi strutturali (solai e tetto) che nell’impiantistica. Avendo la necessità di essere ripristinata, sia le divisioni interne sia la creazione di ulteriori servizi igienici, possono essere create ex novo. A tal proposito esiste già un intero rilievo della struttura e si potrà avere supporto anche per eventuale consulenza per pratiche e progetto di recupero.

Completa la proprietà un ulteriore locale che un tempo era l’oleificio del paese il cosiddetto frantoio, che caratterizza ulteriormente l’intera soluzione, collocato in un fabbricato adiacente.

Esternamente la struttura presenta una muratura portante con a vista materiali originali comunque ben conservati che, con opportuna opera di ripulitura, rappresentano elementi caratteristici di tali tipologie. La proprietà si trova a pochi chilometri sia dal centro di Cosenza che da Spezzano Sila, e la vasta scelta di tragitti grazie ad un’ottima viabilità fanno sì che si viva immersi in una piccola realtà di paese, ma con la comodità di spostarsi agevolmente.

Tale soluzione immersa nel verde e incastonata ai piedi della Presila è destinata prevalentemente a chi non cerca solo una casa, ma uno stile di vita diverso; magari alla ricerca di indipendenza energetica con scelte ecologiche (fotovoltaico, acqua piovana ed energie da fonti rinnovabili), senza dimenticare chi desidera creare un’attività a misura d’uomo, per esempio un B&B, un agriturismo o una casa vacanze.

Per appuntamenti i nostri incaricati sono disponibili tutti i giorni dalle ore 9.30 alle 12.30 e dalle 15.30 alle 19.00 e il sabato dalle 9.30 alle 12.30. A vostra disposizione uno staff di consulenza creditizia in grado di proporvi il mutuo o il finanziamento più adatto alle vostre possibilità. Contattateci per fissare un incontro gratuito nei nostri uffici. Ogni agenzia ha un proprio titolare ed è autonoma. Vi invitiamo a cliccare 'Mi piace' sulla nostra Fanpage tecnocasa immobiliare brutia/ e sulla

pagina instagram Tecnocasa cosenza Tribunale,per essere aggiornati su tutte le nostre proposte

Mostra tutto

Nelle vicinanze

Trasporto pubblico Trasporto pubblico
Pedace
Pedace
1,5 Km
Bosco
Bosco
1,6 Km
Ricariche auto elettriche Ricariche auto elettriche
Municipio di Casali del Manco | EnelX
2,0 Km
Pedace Garibaldini | EnelX
2,4 Km
Farmacia Farmacia
Farmacia
1,7 Km
Mostra tutto

Caratteristiche

Rif.:
61096361
Piano:
3 di 3 (Piano terra)
Balconi:
2
Camere da letto:
3
Arredamento:
Assente
Condizionamento:
Assente
Mostra tutto
Prezzo Prezzo
€ 65.000
Rata mutuo Rata mutuo
€ 309 / mese
Spese annue Spese annue
€ 0
Proponi il tuo prezzoProponi il tuo prezzo

Classe Energetica

Questo immobile è esente da classe energetica
Anno di costruzione:
1860
Riscaldamento:
Assente

Ti interessa visionare l'immobile?

Fissa un appuntamento  Fissa un appuntamento

Richiedi informazioni

Clicca su Leggi per aprire l'informativa
* Questi campi sono obbligatori

Calcola il tuo mutuo

Semplice e senza impegno
Anticipo

( % )
Mutuo

( % )

pochi semplici passi

inserisci i tuoi dati
Questionario completato
Grazie per aver richiesto un appuntamento senza impegno con un nostro Consulente del Credito e Assicurativo.

Hai inserito correttamente tutti i dati necessari e a breve riceverai una e-mail con un link da convalidare per inviare i tuoi dati.
Affiliato
Immobiliare Brutia Srl
P.zza Fausta e Luigi Gullo, 85 87100 Cosenza (CS)

Il nostro staff


  • Pino Gallo
    Affiliato

  • Donato Infusino
    Responsabile

  • Cristina Gallo
    Coordinatrice

  • Giuseppe Ricca
    Collaboratore

  • Vincenzo Serafini
    Collaboratore

  • Teresa Strancia
    Coordinatrice
P.zza Fausta e Luigi Gullo, 85 87100 Cosenza (CS)
Zona: Cosenza Nord
Mostra su mappa
Orari: dal lunedi al venerdi mattina:8.30-13.00; pomeriggio:15.00-19.30 sabato 9.00-13.00
Affiliato
Immobiliare Brutia Srl
P.zza Fausta e Luigi Gullo, 85 87100 Cosenza (CS)

2026 Tecnocasa Franchising S.p.A. - P. IVA 08365160152 - Via Monte Bianco 60/A 20089 Rozzano (MI). Ogni agenzia ha un proprio titolare ed è autonoma. Privacy policy | Policy utilizzo | Cookie policy