Quadrilocale in vendita

Cosenza, Via Antonio Giannuzzi - Cosenza Nord
€ 230.000
5 locali 5 locali
152 Mq 152 Mq
2 bagni 2 bagni

Quadrilocale in vendita

Cosenza, Via Antonio Giannuzzi - Cosenza Nord

Descrizione annuncio

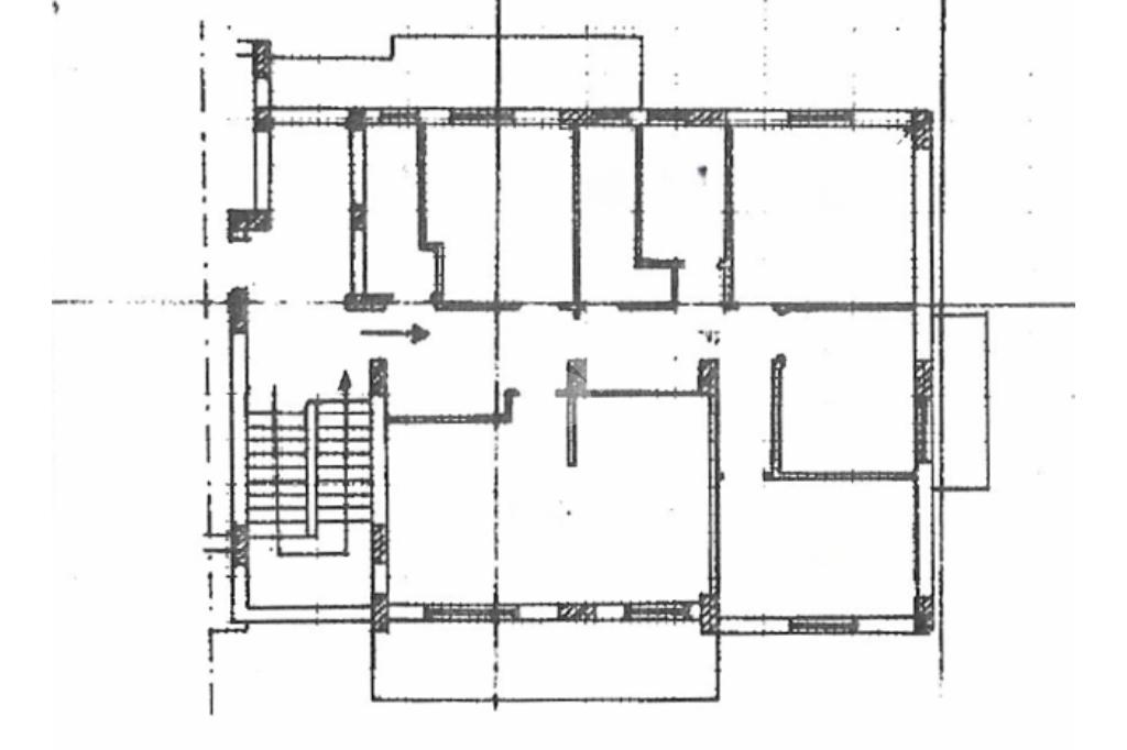
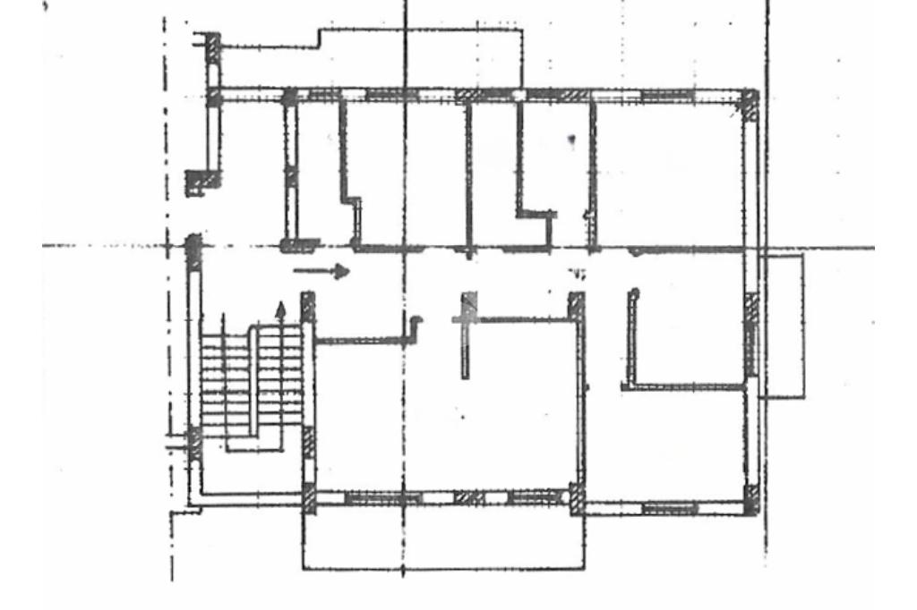
Cosenza, via Antonio Giannuzzi a due passi dal Tribunale di Cosenza, in un fabbricato del 1996 con corte recintata, proponiamo in vendita un ampio e funzionale appartamento posto al terzo piano, servito da ascensore.

L'immobile si distingue per la luminosità degli ambienti, l'ottima distribuzione degli spazi interni e la posizione strategica, all'interno di un contesto residenziale ben collegato e ricco di servizi.

All'ingresso abbiamo un comodo disimpegno che permette di mantenere riservato il soggiorno e la cucina oltre al fatto che tranquillamente si potrebbe sfruttare tale spazio creando una comodissima zona open spece che renderebbe l'area giorno molto accogliente e spaziosa, con accesso diretto a un terrazzo esposto a Est, molto soleggiato e ben illuminato.

Sulla sinistra, ben separata dal disimpegno, troviamo la prima stanza dell'appartamento, attualmente utilizzata come studiolo, ma che, per la sua metratura, può essere molto versatile con numerose possibilità di utilizzo.

Proseguendo, si accede in quella che potrebbe essere la cucina che attualmente è adibita a studio ma essendo direttamente collegata al bagno c'è la possibilità di spostare i vari scarichi necessari. Anch'essa è dotata di un terrazzo, questa volta esposto a Ovest: perfetto per godere della luce naturale e del sole pomeridiano.

La zona notte comprende invece 3 camere da letto una matrimaniale e due doppie, adatte ad ospitare nuclei familiari numerosi o per chi necessita di spazi ampi da dedicare ad altri usi.

I due bagni, entrambi finestrati, offrono funzionalità e comfort, seppur non ristrutturati, si presentano in ottime condizioni e dispongono di una notevole metratura.

Gli infissi sono sono in legno e vetrocamera, garantendo un ottimo isolamento termico e acustico.

Il riscaldamento è autonomo, elemento che assicura una gestione efficiente dei consumi. La pavimentazione è in gres porcellanato nella zona giorno, mentre è presente il parquet nella zona notte.

Completano la proprietà un comodo Box di 27 mq e un posto auto in corte condominiale, che rendono l'immobile ancora più funzionale e adatto alle esigenze quotidiane.

La posizione è uno dei punti di forza dell'immobile: in una zona strategica, comoda ai servizi, ai trasporti pubblici, scuole, negozi e principali arterie stradali, l'appartamento rappresenta una soluzione ideale sia per famiglie, sia per chi cerca una residenza tranquilla ma ben collegata.

I nostri incaricati sono disponibili dal lunedì al venerdì dalle 9.30 alle 12.30 e dalle 15.00 alle 19.00, e il sabato dalle 9.30 alle 12.30. Per qualsiasi richiesta, siamo a vostra disposizione per fissare un appuntamento gratuito nei nostri uffici. Offriamo anche consulenza creditizia, con la possibilità di individuare il mutuo o il finanziamento più adatto alle vostre esigenze. Ogni agenzia ha un proprio titolare ed è autonoma. Vi invitiamo a seguirci sulla nostra fanpage Tecnocasa Immobiliare Brutia per rimanere aggiornati su tutte le nostre proposte immobiliari e le normative in ambito abitativo.

Mostra tutto

Nelle vicinanze

Trasporto pubblico Trasporto pubblico
Cosenza Vaglio Lise
Cosenza Vaglio Lise
1,1 Km
stazione di Cosenza
stazione di Cosenza
1,1 Km
Cosmai
Cosmai
470 m
Cosenza Autostazione (16)
Cosenza Autostazione (16)
980 m
Cosenza Monaco
Cosenza Monaco
940 m
Ricariche auto elettriche Ricariche auto elettriche
Cosenza Tribunale | EnelX
280 m
COSENZA Città dei Ragazzi | ENELX
320 m
EnelX Fast EVA+ Cosenza
1,1 Km
Rende Busento | EnelX
1,5 Km
Rende Via Caduti di Nassirya | EnelX
1,8 Km
Scuole Scuole
Liceo Scientifico G. B. Scorza
430 m
Liceo Scientifico G.B. Scorza
440 m
I.T.C. G. Pezzullo
510 m
ITI A. MONACO di Cosenza
550 m
ITI A. Monaco
560 m
Farmacia Farmacia
Farmacia Beneduce Antonietta
2,2 Km
Ospedali Ospedali
Biocontrol
530 m
Pronto Soccorso
1,9 Km
Ospedale di Cosenza
2,1 Km
Supermercati Supermercati
MD Discount
370 m
Carrefour
1,2 Km
NaturHouse
1,2 Km
Carrefour Market
1,8 Km
Iperspar
1,8 Km
Negozi Negozi
Negozi
1,5 Km
Bar Bar
Bar San Francesco
1,1 Km
Panoramico
1,1 Km
Bar
1,3 Km
Bistot De Giuseppe
1,4 Km
Bar Kennedy
1,4 Km
Ristoranti Ristoranti
Ara casa mia
2,2 Km
Ristorante Cinese
2,6 Km
Griglieria del Popolo
2,9 Km
Mostra tutto

Caratteristiche

Rif.:
61121617
Piano:
3 di 6 con ascensore (Piano medio)
Box:
1
Posti auto:
1
Balconi:
1
Terrazzi:
2
Mostra tutto
Prezzo Prezzo
€ 230.000
Rata mutuo Rata mutuo
€ 1.086 / mese
Spese annue Spese annue
€ 762
Proponi il tuo prezzoProponi il tuo prezzo

Classe Energetica

D
D
D
D
D
D
D
D
D
EP globale non rinnovabile:
51.15 kW h/m² anno
EP globale rinnovabile:
0.53 kW h/m² anno
EP invernale del fabbricato:
EP estiva del fabbricato:
Anno di costruzione:
1996
Riscaldamento:
Autonomo
Tipo impianto:
A radiatori
Tipo alimentazione:
Metano

Ti interessa visionare l'immobile?

Fissa un appuntamento  Fissa un appuntamento

Richiedi informazioni

Clicca su Leggi per aprire l'informativa
* Questi campi sono obbligatori

Calcola il tuo mutuo

Semplice e senza impegno
Anticipo

( % )
Mutuo

( % )

pochi semplici passi

inserisci i tuoi dati
Questionario completato
Grazie per aver richiesto un appuntamento senza impegno con un nostro Consulente del Credito e Assicurativo.

Hai inserito correttamente tutti i dati necessari e a breve riceverai una e-mail con un link da convalidare per inviare i tuoi dati.
Affiliato
Immobiliare Brutia Srl
P.zza Fausta e Luigi Gullo, 85 87100 Cosenza (CS)

Il nostro staff


  • Pino Gallo
    Affiliato

  • Donato Infusino
    Responsabile

  • Cristina Gallo
    Coordinatrice

  • Giuseppe Ricca
    Collaboratore

  • Vincenzo Serafini
    Collaboratore

  • Teresa Strancia
    Coordinatrice
P.zza Fausta e Luigi Gullo, 85 87100 Cosenza (CS)
Zona: Cosenza Nord
Mostra su mappa
Orari: dal lunedi al venerdi mattina:8.30-13.00; pomeriggio:15.00-19.30 sabato 9.00-13.00
Affiliato
Immobiliare Brutia Srl
P.zza Fausta e Luigi Gullo, 85 87100 Cosenza (CS)

2025 Tecnocasa Franchising S.p.A. - P. IVA 08365160152 - Via Monte Bianco 60/A 20089 Rozzano (MI). Ogni agenzia ha un proprio titolare ed è autonoma. Privacy policy | Policy utilizzo | Cookie policy