Quadrilocale in vendita

Cosenza, Via Eugenio Martorelli - Cosenza Nord
€ 158.000
4 locali 4 locali
130 Mq 130 Mq
2 bagni 2 bagni

Quadrilocale in vendita

Cosenza, Via Eugenio Martorelli - Cosenza Nord

Descrizione annuncio

Se stai cercando una casa comoda, efficiente e pronta da vivere, in un contesto riqualificato e ben servito, questa soluzione potrebbe davvero fare al caso a Cosenza, in via Eugenio Martorelli, in una zona tranquilla ma centrale, ben collegata e con tutti i servizi a portata di mano.

L’appartamento si trova al piano terra di un edificio degli anni ’60 che è stato completamente riqualificato grazie agli interventi del Superbonus 110%. Lo stabile è stato oggetto di un intervento profondo che ha incluso cappotto termico esterno, ripristino del tetto con conseguente installazione di impianto fotovoltaico condominiale, collegato anche all'appartamento, che contribuisce alla produzione di energia elettrica, abbattendo significativamente i costi in bolletta, colonnine di ricarica per auto elettriche nella corte interna.

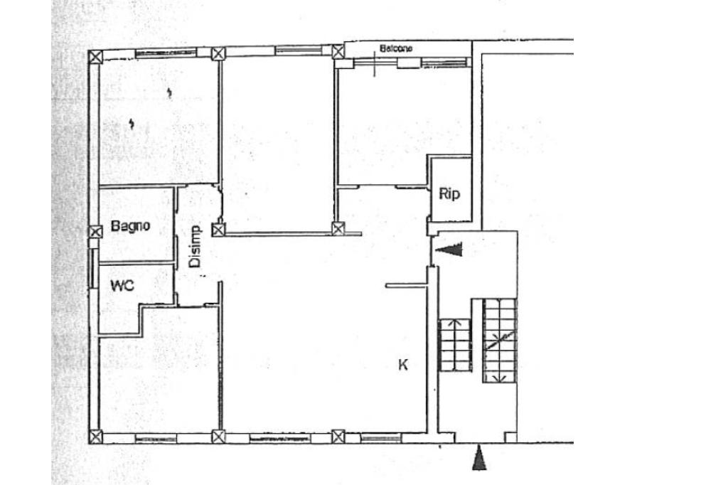
L'appartamento ha una superficie di 130 mq ed è stato ristrutturato internamente qualche anno fa, mantenendosi in ottime condizioni. L’ingresso si apre su un ampio e accogliente open space, dove cucina e soggiorno si sviluppano sulla sinistra con esposizione a Ovest, creando un ambiente ideale per la vita quotidiana e per ricevere. Subito sulla destra troviamo un pratico ripostiglio/dispensa, molto utile per l’organizzazione domestica. Sempre sulla destra, si accede a un ambiente versatile, attualmente utilizzato come studio o salottino secondario, che dispone anche di un balcone. Proseguendo, si entra nella zona notte, ben separata e riservata, dove troviamo due ampie camere matrimoniali, una camera doppia, due bagni il primo comodo nel quale è presente il box doccia mentre l’altro di servizio adibito anche a lavanderia. Entrambi i bagni sono finestrati.

Gli infissi dell’appartamento, pur non essendo stati sostituiti con i lavori del 110, sono stati comunque rinnovati e sono di ottima qualità: interno in legno, esterno in PVC, doppio vetrocamera e zanzariere già installate su tutte le finestre.

Dal punto di vista impiantistico, l’immobile ha subito diversi lavori di ristrutturazione. Sono stati ripresi tutti gli impianti ed è stata installata anche una pompa di calore dedicata alla produzione di acqua calda sanitaria. L’impianto fotovoltaico invece può essere monitorato direttamente da un displei presente nel disimpegno della zona notte.

Infine, completano la proprietà una cantina privata molto spaziosa, con autoclave già installata, due posti auto all’interno della corte condominiale e un locale condominiale condiviso, ideale per biciclette, passeggini o uso comune.

I nostri incaricati sono disponibili dal lunedì al venerdì dalle 9.30 alle 12.30 e dalle 15.00 alle 19.00, e il sabato dalle 9.30 alle 12.30. Vi invitiamo a seguirci sulla nostra fanpage Tecnocasa Immobiliare Brutia per rimanere aggiornati su tutte le nostre proposte immobiliari e le normative in ambito abitativo

Mostra tutto

Nelle vicinanze

Trasporto pubblico Trasporto pubblico
Cosenza Vaglio Lise
Cosenza Vaglio Lise
1,2 Km
stazione di Cosenza
stazione di Cosenza
1,2 Km
Cosmai
Cosmai
410 m
Trasporto pubblico
1,1 Km
Cosenza Monaco
Cosenza Monaco
1,1 Km
Ricariche auto elettriche Ricariche auto elettriche
COSENZA Città dei Ragazzi | ENELX
160 m
Cosenza Tribunale | EnelX
440 m
EnelX Fast EVA+ Cosenza
1,0 Km
Rende Busento | EnelX
1,4 Km
Rende Via Caduti di Nassirya | EnelX
1,7 Km
Scuole Scuole
Liceo Scientifico G. B. Scorza
600 m
Liceo Scientifico G.B. Scorza
620 m
I.T.C. G. Pezzullo
680 m
ITI A. MONACO di Cosenza
720 m
ITI A. Monaco
730 m
Farmacia Farmacia
Farmacia Beneduce Antonietta
2,3 Km
Parafarmacia Conad
3,0 Km
Ospedali Ospedali
Biocontrol
680 m
Pronto Soccorso
2,0 Km
Ospedale di Cosenza
2,1 Km
Supermercati Supermercati
MD Discount
480 m
NaturHouse
1,3 Km
Carrefour
1,4 Km
Iperspar
1,7 Km
Iper Sidis
1,9 Km
Negozi Negozi
Negozi
1,5 Km
Bar Bar
Bar San Francesco
1,2 Km
Panoramico
1,2 Km
Bistot De Giuseppe
1,3 Km
Bar
1,4 Km
Bar Kennedy
1,5 Km
Ristoranti Ristoranti
Ara casa mia
2,3 Km
Ristorante Cinese
2,5 Km
Griglieria del Popolo
2,8 Km
Papero Verde
3,0 Km
Mostra tutto

Caratteristiche

Rif.:
61119414
Piano:
Basso di 3
Totale piani:
3
Posti auto:
2
Balconi:
1
Camere da letto:
2
Mostra tutto
Prezzo Prezzo
€ 158.000
Rata mutuo Rata mutuo
€ 746 / mese
Spese annue Spese annue
€ 480
Proponi il tuo prezzoProponi il tuo prezzo

Classe Energetica

A4
A4
A4
A4
A4
A4
A4
A4
A4
EP globale non rinnovabile:
11.74 kW h/m² anno
EP globale rinnovabile:
57.06 kW h/m² anno
EP invernale del fabbricato:
EP estiva del fabbricato:
Anno di costruzione:
1960
Riscaldamento:
Autonomo
Tipo impianto:
A radiatori
Tipo alimentazione:
Metano

Ti interessa visionare l'immobile?

Fissa un appuntamento  Fissa un appuntamento

Richiedi informazioni

Clicca su Leggi per aprire l'informativa
* Questi campi sono obbligatori

Calcola il tuo mutuo

Semplice e senza impegno
Anticipo

( % )
Mutuo

( % )

pochi semplici passi

inserisci i tuoi dati
Questionario completato
Grazie per aver richiesto un appuntamento senza impegno con un nostro Consulente del Credito e Assicurativo.

Hai inserito correttamente tutti i dati necessari e a breve riceverai una e-mail con un link da convalidare per inviare i tuoi dati.
Affiliato
Immobiliare Brutia Srl
P.zza Fausta e Luigi Gullo, 85 87100 Cosenza (CS)

Il nostro staff


  • Pino Gallo
    Affiliato

  • Donato Infusino
    Responsabile

  • Cristina Gallo
    Coordinatrice

  • Giuseppe Ricca
    Collaboratore

  • Vincenzo Serafini
    Collaboratore

  • Teresa Strancia
    Coordinatrice
P.zza Fausta e Luigi Gullo, 85 87100 Cosenza (CS)
Zona: Cosenza Nord
Mostra su mappa
Orari: dal lunedi al venerdi mattina:8.30-13.00; pomeriggio:15.00-19.30 sabato 9.00-13.00
Affiliato
Immobiliare Brutia Srl
P.zza Fausta e Luigi Gullo, 85 87100 Cosenza (CS)

2025 Tecnocasa Franchising S.p.A. - P. IVA 08365160152 - Via Monte Bianco 60/A 20089 Rozzano (MI). Ogni agenzia ha un proprio titolare ed è autonoma. Privacy policy | Policy utilizzo | Cookie policy