Trilocale in vendita

Cosenza, Via Samuele Tocci
€ 94.000
3 locali 3 locali
103 Mq 103 Mq
2 bagni 2 bagni

Trilocale in vendita

Cosenza, Via Samuele Tocci

Descrizione annuncio

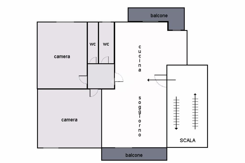
Cosenza, via Samuele Tocci, in un contesto tranquillo e ben servito, proponiamo in vendita un elegante appartamento situato al quarto ed ultimo piano di una palazzina senza ascensore, completamente ristrutturato nel 2020 con finiture moderne e impianti di ultima generazione.

L'immobile si sviluppa su una superficie ben distribuita ed è composto da una zona giorno luminosa con soggiorno e cucina a vista in un unico ambiente open space , reso particolarmente arioso e accogliente dalla presenza di due balconi, uno con esposizione a est e l'altro a ovest, che garantiscono una doppia esposizione e un'ottima ventilazione naturale durante tutta la giornata.

La zona notte ospita due camere da letto: una matrimoniale, spaziosa e dotata di controsoffitto con faretti a LED integrati, e una camera doppia, ideale come seconda camera, studio o stanza per gli ospiti.
Sono presenti due bagni, entrambi modernamente rifiniti, ciascuno dotato di box doccia e termo arredo, per un maggiore comfort e funzionalità.

Le finiture interne sono curate nel dettaglio: la pavimentazione è in gres porcellanato effetto pietra di alta qualità in tutti gli ambienti, ad eccezione dei bagni.

Il sistema di riscaldamento è autonomo, con radiatori in ghisa, mentre gli infissi sono in PVC con vetrocamera ad alte prestazioni, domotizzati per la gestione automatica dell'apertura e chiusura, migliorando sicurezza ed efficienza energetica. Il controsoffitto con faretti a LED è presente sia nella zona giorno che nella camera matrimoniale, aggiungendo un tocco moderno e contribuendo a una distribuzione uniforme e raffinata della luce. Sono presenti anche condizionatori nella zona giorno.

Completa la soluzione una comoda soffitta.

I nostri incaricati sono disponibili dal lunedì al venerdì dalle 9.30 alle 12.30 e dalle 15.00 alle 19.00, e il sabato dalle 9.30 alle 12.30. Vi invitiamo a seguirci sulla nostra fanpage Tecnocasa Immobiliare Brutia per rimanere aggiornati su tutte le nostre proposte immobiliari e le normative in ambito abitativo.

Mostra tutto

Nelle vicinanze

Trasporto pubblico Trasporto pubblico
Cosenza Vaglio Lise
Cosenza Vaglio Lise
1,3 Km
stazione di Cosenza
stazione di Cosenza
1,3 Km
Cosmai
Cosmai
580 m
Cosenza Autostazione (16)
Cosenza Autostazione (16)
970 m
Cosenza Monaco
Cosenza Monaco
1,1 Km
Ricariche auto elettriche Ricariche auto elettriche
COSENZA Città dei Ragazzi | ENELX
190 m
Cosenza Tribunale | EnelX
370 m
EnelX Fast EVA+ Cosenza
890 m
Rende Busento | EnelX
1,6 Km
Cosenza Misasi | EnelX
1,8 Km
Scuole Scuole
Liceo Scientifico G. B. Scorza
570 m
Liceo Scientifico G.B. Scorza
580 m
ITI A. Monaco
670 m
I.T.C. G. Pezzullo
680 m
ITI A. MONACO di Cosenza
680 m
Farmacia Farmacia
Farmacia Beneduce Antonietta
2,2 Km
Ospedali Ospedali
Biocontrol
580 m
Pronto Soccorso
1,8 Km
Ospedale di Cosenza
2,0 Km
Supermercati Supermercati
MD Discount
570 m
NaturHouse
1,2 Km
Carrefour
1,4 Km
Carrefour Market
1,8 Km
GS
1,8 Km
Negozi Negozi
Negozi
1,6 Km
Bar Bar
Panoramico
1,1 Km
Bar San Francesco
1,1 Km
Bar
1,3 Km
Bar Kennedy
1,4 Km
Bistot De Giuseppe
1,4 Km
Ristoranti Ristoranti
Ara casa mia
2,4 Km
Ristorante Cinese
2,6 Km
Griglieria del Popolo
3,0 Km
Mostra tutto

Caratteristiche

Rif.:
61113781
Piano:
4 di 4 (Piano alto)
Balconi:
2
Camere da letto:
2
Arredamento:
Assente
Condizionamento:
Autonomo
Mostra tutto
Prezzo Prezzo
€ 94.000
Rata mutuo Rata mutuo
€ 447 / mese
Spese annue Spese annue
€ 360
Proponi il tuo prezzoProponi il tuo prezzo
Immobile valutato con T·Valuta

Classe Energetica

E
E
E
E
E
E
E
E
E
EP globale non rinnovabile:
184.93 kW h/m² anno
EP globale rinnovabile:
3.45 kW h/m² anno
EP invernale del fabbricato:
EP estiva del fabbricato:
Anno di costruzione:
1960
Riscaldamento:
Autonomo
Tipo impianto:
A radiatori
Tipo alimentazione:
Metano

Ti interessa visionare l'immobile?

Fissa un appuntamento  Fissa un appuntamento

Richiedi informazioni

Clicca su Leggi per aprire l'informativa
* Questi campi sono obbligatori

Calcola il tuo mutuo

Semplice e senza impegno
Anticipo

( % )
Mutuo

( % )

pochi semplici passi

inserisci i tuoi dati
Questionario completato
Grazie per aver richiesto un appuntamento senza impegno con un nostro Consulente del Credito e Assicurativo.

Hai inserito correttamente tutti i dati necessari e a breve riceverai una e-mail con un link da convalidare per inviare i tuoi dati.
Affiliato
Immobiliare Brutia Srl
P.zza Fausta e Luigi Gullo, 85 87100 Cosenza (CS)

Il nostro staff


  • Pino Gallo
    Affiliato

  • Donato Infusino
    Responsabile

  • Cristina Gallo
    Coordinatrice

  • Giuseppe Ricca
    Collaboratore

  • Vincenzo Serafini
    Collaboratore

  • Teresa Strancia
    Coordinatrice
P.zza Fausta e Luigi Gullo, 85 87100 Cosenza (CS)
Zona: Cosenza Nord
Mostra su mappa
Orari: dal lunedi al venerdi mattina:8.30-13.00; pomeriggio:15.00-19.30 sabato 9.00-13.00
Affiliato
Immobiliare Brutia Srl
P.zza Fausta e Luigi Gullo, 85 87100 Cosenza (CS)

2026 Tecnocasa Franchising S.p.A. - P. IVA 08365160152 - Via Monte Bianco 60/A 20089 Rozzano (MI). Ogni agenzia ha un proprio titolare ed è autonoma. Privacy policy | Policy utilizzo | Cookie policy